Zistersdorf Geschoßwohnungen

Bauaufgabe: Wohnbau/Neubau
Auftraggeber: Bauträger Alpenland
Standort: 2225 Zistersdorf / Niederösterreich
Umsetzung: 2008 - 2018

Architektur: Architekt Sebastian Illichmann
in Kooperation mit Architekt Jon Prix

Photos: © Kurt Kuball

Ausführende Firmen:

Baufirma: Traunfellner als Generalunternehmer

Mitarbeit: DI Johanna Köstlinger, Maria Pernegger

 

Der Bauteil mit den Geschoßwohnungen hätte ursprünglich gemeinsam mit den Reihenhäusern errichtet werden sollen, da beide gemeinsam und als Ergänzung zueinander geplant waren. Er wurde aber als 2. Bauteil dann doch später errichtet. Daher die sehr lange Projektdauer.

weiterlesen...

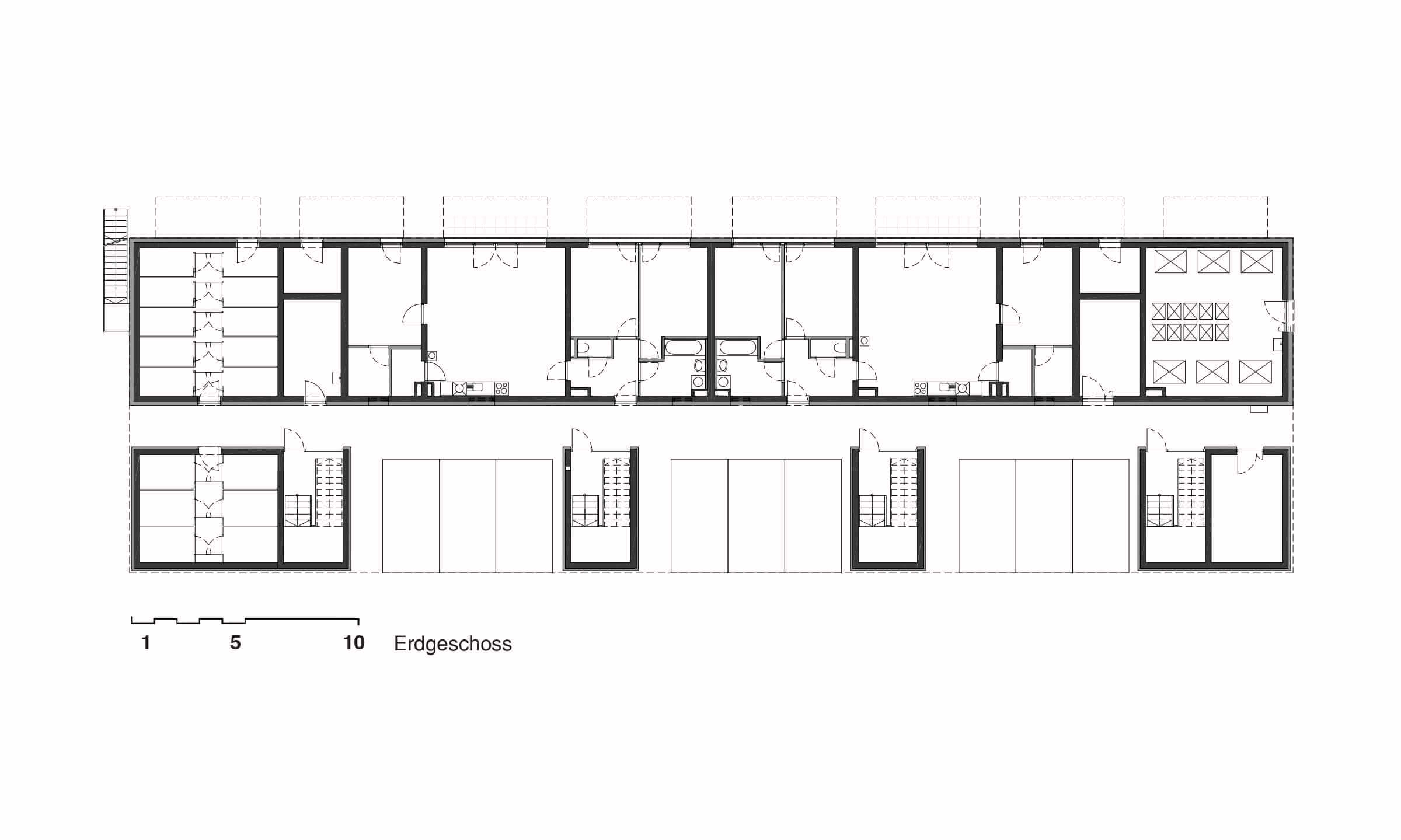
Das Nord-Süd ausgerichtete Grundstück befindet sich in Ortsrandlage und weist in Ost-West Richtung einen Höhenunterschied von rund 3-4m auf. Im Osten befindet sich eine relativ stark befahrene Straße. Entlang dieser Bundesstraße wurde der durchgehende dreigeschossiger Baukörper mit den Geschoßwohnungen errichtet. Die Bebauung im Westen erfolgte hingegen durch kompakte Doppelhäuser, welche an einer neu geschaffenen Geländekante so platziert wurden, dass sie innerhalb der Anlage als eingeschossig wahrgenommen werden, sich jedoch zum Garten und nach Westen hin mit 2 Geschoßen orientieren.

Bei der Entwicklung der Wohnungen wurde auf eine sehr kompakte Größe geachtet. In den Obergeschoßen gibt es 2- bzw. 3-Zimmer-Wohnungen. Jede Wohnung hat einen großen, dem Wohnzimmer vorgelagerten, Balkon Richtung Westen mit einem weiten Blick über den Ort und den Hügeln der Umgebung. Im Erdgeschoß gibt es 2 größere Wohnungen mit Eigengarten.

Die Gebäude wurden in Massivbauweise errichtet. Eine Optimierung der Spannweiten ergab, dass im Inneren keine zusätzlichen tragenden Elemente notwendig waren. Das Gebäude wurde als Niedrigenergiestandard geplant und alle Wohneinheiten mit einer kontrollierten Wohnraumbelüftung und Wärmetauschern ausgestattet.

Zurück

Back to top ::before