House Milna

Bauaufgabe: Neubau
Auftraggeber: Privat
Standort: Insel Hvar / Kroatien
Umsetzung: 2013 - 2017

Photos: © Architekt Sebastian Illichmann

Die Bebauungsstruktur der kleinen Ortschaft besteht mehr oder weniger nur aus einer Häuserzeile entlang einer ruhigen Straße direkt an der Küste. Der Ort ist seit den 1950er Jahren sehr ungeregelt entstanden. Erst in den letzten Jahren wurde so etwas wie ein Bebauungsplan entwickelt bzw. halten sich die Bewohner auch daran. Die Gebäude sind geprägt durch die maximale Flächen- und Höhenausnutzung sowie die Balkone und Loggien Richtung Meer.

weiterlesen...

Bauherr und Architekt war es wichtig, dass sich das Haus einerseits nicht zu sehr von dieser Art der Bebauung abhebt sie aber zugleich etwas anders interpretiert.

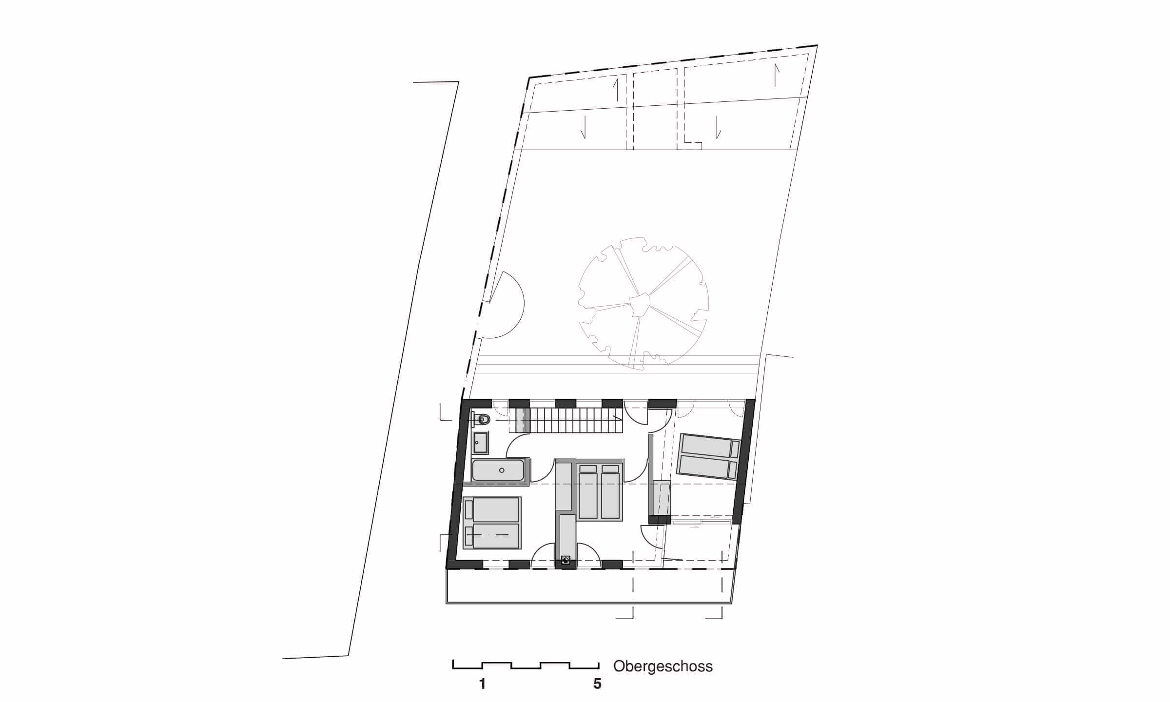
Im Souterrain bzw. dem Erdgeschoß Richtung Straßenniveau entstand eine Art Einliegerwohnung für Gäste mit eigenem Bad und kleiner Kochgelegenheit. Der erste Stock befindet sich auf der Höhe des, über eine kleine Seitenstraße erreichbaren, Hofs. Ein großer Wohn-Ess-Raum öffnet sich nach drei Seiten. Zum Hof, zu einer überdeckten Terrasse und Richtung Meer. An der Hinterseite des Hofes wurde ein Nebengebäude mit kleiner Wohneinheit errichtet. Im zweiten Stock des Haupthauses befinden sich 3 Zimmer und ein Bad. Alle Zimmer sind über einen durchgehenden Balkon verbunden.

Zurück

Back to top ::before